Levolan

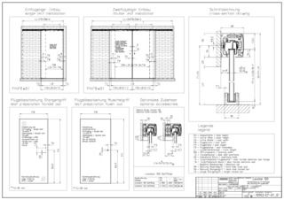
Levolan 120 glass ceiling installation concealed * Sliding door fitting for 120 kg glass leafs and concealed ceiling installation

Levolan 120 roller sliding fitting Slim design with integrated fitting technology
  • Design sliding door fitting system for glass doors with ESG (toughened safety glass ) 10 to 12 mm as well as LSG up to 12.76 mm and up to 120 kg leaf weight
  • Slim design with integrated door fitting technology
  • Fully integrated in the track
  • The Levolan Smart fix installation system means the use of assembly tools is reduced to a minimum - for quick and convenient installation
  • Final assembly of the door fitting by simple clipping
  • With damping on one or both sides for doors with up to 60 kg leaf weight, so that the door is quietly slowed down and moved automatically into the end position
Show more
  • Tested for durability in accordance with DIN EN 1527 over 100,000 test cycles
  • Cover profiles for ceiling installation enable an elegant connection between the ceiling opening and the door fitting
Contact us

Application Areas

  • For design-oriented interior sliding doors for living and office areas
  • For all single- and multiple-leaf sliding doors
  • Attachment to the ceiling within a concealed installation
  • For attachment on the wall and ceiling (directly and concealed) as well as for glass installation
  • Damped on one or both sides with Levolan 120 SoftStop
  • Smooth running with Levolan 120 SoftStop makes it particularly well suited for doors in living and office spaces

Technical data

Levolan 120 glass ceiling installation concealed
Leaf material Glass
Leaf weight (max.) 120 kg
Number of leaves 1-leaf, 2-leaf
Leaf height (max.) 3500 mm
Leaf thickness from 10 mm
Leaf thickness to 12 mm
Track geometry straight
Type of installation Concealed in the ceiling

Downloads

Contact

GEZE France +33-1-60-62-60-70 GEZE Service +33-800-8000-18