Slimdrive EMD

Slimdrive EMD F-IS swing door drive system * Electromechanical swing door system for double leaf fire and smoke protection doors with closing sequence control

Slimdrive EMD-F-IS
  • Closing force with variable adjustment of EN 4-6
  • Opening and closing speed can be individually adjusted
  • Mechanical latching action when operated without current, and electrical latching action in regular operation, which accelerates the door shortly before the closed position
  • Mechanical and electrical closing sequence control holds the active leaf in the waiting position until the passive leaf is closed
  • Low-energy function opens and closes the door with reduced speed, fulfilling the highest safety demands
  • Servo function for motorized support when manually opening the door
Show more
  • Vestibule function controls the opening and closing of two consecutive doors (interlocking door system)
  • Obstacle detection detects an object through contact and stops the opening or closing process
  • Automatic reversing detects an obstacle and returns to the opening position
  • Push & Go function triggers the automatic drive following light manual pressure on the door leaf
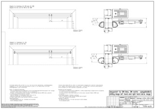
  • Drive can be used with roller guide rail or link arm
Contact us

Application Areas

  • Fire and smoke protection doors
  • Right and left double leaf single-action doors
  • Single-action doors up to 2800 mm hinge clearance, 1400 mm leaf width and 230 kg weight
  • Minimum hinge clearance 1500 mm, minimum leaf width 750 mm
  • Interior and exterior doors that must close in the correct sequence even without power
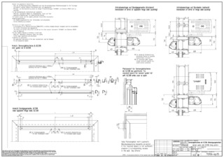
  • Transom installation hinge and opposite hinge side

Configuration Variants

  • Slimdrive EMD-F-IS
  • Slimdrive EMD-F/R-IS

Technical data

Slimdrive EMD F-IS swing door drive system
Height 70 mm
Depth 121 mm
Leaf weight (max.) 1-leaf 230 kg
Distance centre door hinge-drive axis (min.-max.) 2-leaf 1500 mm - 2800 mm
Leaf width (min.-max.) 750 mm - 1400 mm
Reveal depth (max.) 400 mm
Door overlap (max.) 30 mm
Drive type Electromechanical
Opening angle (max.) 130 °
Spring pre-load EN 4 - EN 6
DIN left Yes
DIN right Yes
Transom installation opposite hinge side with link arm Yes
Transom installation opposite hinge side with roller guide rail Yes
Transom installation hinge side with roller guide rail Yes
Mechanical latching action Yes
Electrical latching action Yes
Electrical closing sequence control Yes
Mechanical closing sequence control Yes
Disconnection from mains Main switch in the drive
Activation delay (max.) 20 s
Operating voltage 230 V
Power rating 230 W
Power supply for external consumers (24 V DC) 1000 mA
Service temperature -15 - 50 °C
IP rating IP20
Mode of operation Off, Automatic, Permanently open, Shop closing, Night
Type of function Fully automatic
Automatic function Yes
Low-energy function Yes
Servo function Yes
Key function Yes
Vestibule function Yes
Obstacle detection Yes
Automatic reversing Yes
Push & Go adjustable
Operation Programme switch DPS, Programme switch integrated in the drive
Parameter setting GEZEconnects (PC + Bluetooth), Service terminal ST 220, Programme switch DPS
Standard conformity DIN 18263-4, DIN 18650, EN 1158:1997/A1:2002/AC:2006, EN 16005
Suitability for fire protection doors Yes

Downloads

Variants & Accessories

Contact

GEZE France +33-1-60-62-60-70 GEZE Service +33-800-8000-18