Free swing door closer 2-leaf

TS 5000 ISM with free swing function * Overhead door closer system with guide rail for double leaf doors with integrated closing sequence control and free swing function on the active leaf

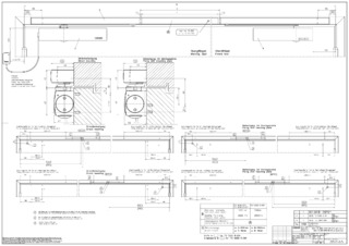
Overhead door closer with guide rail system TS 5000 ISM Door closer for double leaf doors with closing sequence control and with integrated back check, which causes the strongly opened doors to be slowed down.
  • System comprising TS 5000 E HY 3-6 and TS 5000 and ISM guide rail
  • Passive leaf with TS 5000 with closing force EN 2-6 or TS 5000 ECline with closing force EN 3-5
  • Active leaf with TS 5000 E Hy (24 V) and adjustable closing force EN 3-6
  • Can be used for right and left hand doors without conversion
  • Closing sequence control holds the active leaf in the waiting position until the passive leaf is closed
  • Comfort hold-open function on the active leaf to latch the door at the maximum opening angle
Show more
  • Hydraulic latching action which accelerates the door shortly before it is closed
  • Integrated back check, slows down doors that are thrown open forcefully
  • Visual closing force display for easy control of the setting
  • All functions can be adjusted from the front
Contact us

Application Areas

  • Fire and smoke protection doors
  • Right and left double leaf single-action doors
  • Symmetrical and asymmetrical division of door possible
  • Single-action doors up to 2800 mm hinge clearance and 1400 mm leaf width
  • Minimum hinge clearance 1300 mm, minimum width of passive leaf 400 mm
  • Door leaf installation hinge side

Technical data

TS 5000 ISM with free swing function
Barrier-free in accordance with DIN 18040 up to leaf width (max.) in mm 1400 mm
Leaf width (max.) 1400 mm
Type of installation Door leaf installation hinge side
Opening angle (max.) 180 °
Input voltage 24 V DC
Minimum hinge clearance 1300 mm
Minimum passive leaf width 400 mm
Suitability for fire protection doors Yes
Free swing area 85 ° - 160 °
Closing force adjustable Yes, stepless
Adjustable closing speed Yes
Latching action adjustable Yes, via valve
Back check integrated Yes, hydraulically adjustable
Position of closing force adjustment Front
Visual closing force display Yes
Hold-open function Optional
Closing sequence control integrated Yes

Downloads

Contact

GEZE France +33-1-60-62-60-70 GEZE Service +33-800-8000-18