Compas OL 90 N * Compas OL 90 N avec support de châssis standard
- Atteint la largeur d’ouverture totale de 170 mm pour toutes les hauteurs de vantaux
- Faible encombrement grâce au design plat des compas
- Le verrouillage dans le compas garantit un verrouillage du vantail sécurisé
- Le blocage anti-décrochage sur le compas offre une sécurité supplémentaire
- La suspension de compas avec le bouton de déclenchement simplifie le nettoyage des fenêtres à l'intérieur et à l’extérieur
- Les modules entièrement pré-assemblés simplifient le montage
Domaines d’application
- Ventilation confortable et quotidienne des pièces et des escaliers
- Fenêtre rectangulaire ouvrant vers l’intérieur avec ouvrant à soufflet
- Montage sur des fenêtres en bois (sans Euro rainure), fenêtres en PVC ou fenêtres en aluminium
- Montage sur le dormant
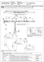
Spécifications du produit
| Compas OL 90 N | |
| Largeur d'ouverture (max.) | 170 mm |
| Largeur de vantail (min.) | 380 mm |
| Hauteur du vantail (min.) | 250 mm |
| Poids du vantail (max.) | 80 kg |
| Encombrement (max.) | 19 mm |
| Largeur d'ouverture réglable (réduction de l'écart) | Oui |
Téléchargements
LABELLING OBLIGATION: © GEZE GmbH
LABELLING OBLIGATION: © GEZE GmbH
LABELLING OBLIGATION: © GEZE GmbH
LABELLING OBLIGATION: © GEZE GmbH
LABELLING OBLIGATION: © GEZE GmbH
LABELLING OBLIGATION: © Lothar Wels / GEZE GmbH
LABELLING OBLIGATION: © Lothar Wels / GEZE GmbH
LABELLING OBLIGATION: © Stefan Dauth / GEZE GmbH
LABELLING OBLIGATION: © Nikolaus Grünwald / GEZE GmbH
LABELLING OBLIGATION: © Nikolaus Grünwald / GEZE GmbH
LABELLING OBLIGATION: © Nikolaus Grünwald / GEZE GmbH
LABELLING OBLIGATION: © Dirk Wilhelmy / GEZE GmbH
Variantes et accessoires
* Remarque concernant les produits présentés
Les produits mentionnés ci-dessus peuvent varier en termes de forme, de type, de caractéristiques et de fonction (design, dimensions, disponibilité, homologations, normes, etc.) selon les pays. Pour toute question, veuillez contacter votre interlocuteur GEZE ou nous écrire à E-Mail .