GEZE ActiveStop intégré * Amortisseur à l’ouverture et à la fermeture, pour portes intérieures battantes en bois
- Angle d'ouverture de la porte à réglage variable de 80° à 140°
- Pour portes ouvrant à droite et à gauche sans besoin de modification
- Ouverture et fermeture contrôlées des portes jusqu’à un poids de vantail max. de 45 kg
- Arrêt en douceur, fermeture silencieuse et maintien en ouverture confortable des portes
- Les claquements de porte, pincements de doigts et marques sur les murs ou les meubles sont évités
- Maintien sécurisé de la porte en position ouverte et donc aucune butée de porte nécessaire
- Amortissement d'ouverture et de fermeture réglable après montage via une vanne
- La vanne de sécurité intégrée offre une protection contre la surcharge
Domaines d’application
- Portes battantes à simple action en bois à droite et à gauche à l’intérieur
- Portes de chambres avec grand confort d’utilisation
- Portes battantes à simple action pour une largeur de vantail jusqu’à 1100 mm
- Montage intégré dans le vantail
- Accessibilité selon DIN 18040-2
Situations de montage dans des projets de référence et des vidéos
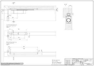
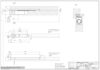
Spécifications du produit
| GEZE ActiveStop intégré | |
| Profondeur | 28 mm |
| Hauteur | 64 mm |
| Poids du vantail (max.) | 45 kg |
| Largeur de vantail (max.) | 1100 mm |
| Type de porte | Fermeture lisse, déporté |
| Épaisseur du vantail dès | 38 mm |
| Réversible DIN gauche et DIN droite | Oui |
| Jeu en feuillure | env. 6 mm d'espace libre dans la zone du levier |
| Type d’installation | horizontal caché |
| Amortissement de fin de course réglable | Oui, par la soupape |
| Amortissement de fin de course dans le sens de la fermeture à partir de | 25 ° |
| Plage d'arrêt en fonction débrayée | 25 ° - 60 ° |
| Amortissement de fin de course dans le sens de l'ouverture à partir de | 60 ° |
| Angle d'ouverture de la porte réglable | Oui, à réglage variable |
| Position de maintien en ouverture réglable | 80 ° - 140 ° |
| Vanne de sécurité contre la surcharge | Oui |
Téléchargements
LABELLING OBLIGATION: © GEZE GmbH
Variantes et accessoires
* Remarque concernant les produits présentés
Les produits mentionnés ci-dessus peuvent varier en termes de forme, de type, de caractéristiques et de fonction (design, dimensions, disponibilité, homologations, normes, etc.) selon les pays. Pour toute question, veuillez contacter votre interlocuteur GEZE ou nous écrire à E-Mail .