TS 5000 ECline * Ferme-porte en applique avec bras à coulisse pour les portes à un vantail accessibles jusqu'à une largeur de vantail de 1250 mm avec aide à l’ouverture
- Force de fermeture réglable en continu EN3-5
- Pour l’accessibilité selon la norme DIN 18040 jusqu'à EN5 (largeur de vantail de 1250 mm)
- Pour portes ouvrant à droite et à gauche sans besoin de modification
- Aide à l’ouverture pour une ouverture plus facile de la porte et un accès confortable
- Aide à l'ouverture désactivable sur les portes exposées à une charge au vent ou à des différences de pression
- À-coup final hydraulique, qui accélère la porte juste avant la position fermée
- La vitesse de fermeture peut être ajustée individuellement
- Amortissement d'ouverture intégré, freine les portes fermées brusquement
- Affichage visuel de la force de fermeture pour contrôler facilement le réglage
- Toutes les fonctions sont réglables par l'avant et pas d’effort de montage supplémentaire par rapport aux systèmes standard
Domaines d’application
- Portes coupe-feu et pare-flammes
- Portes à simple action à droite et à gauche
- Portes battantes à simple action pour une largeur de vantail jusqu'à 1250 mm
- Montage sur ouvrant de porte côté paumelles
- Accès sans obstacle selon DIN 18040 à EN5
Situations de montage dans des projets de référence et des vidéos
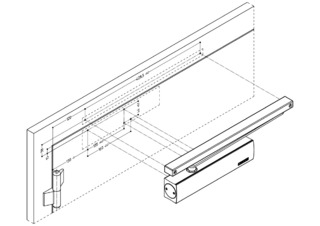
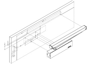
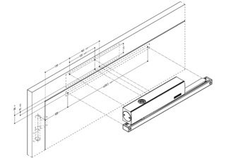
Spécifications du produit
TS 5000 ECline | |
Force de fermeture selon EN 1154 | EN 3 - 5 |
Accessibilité selon DIN 18040 jusqu'à une largeur de vantail (max.) en mm | 1250 mm |
Largeur de vantail (max.) | 1250 mm |
Type de montage | Montage sur ouvrant de porte côté paumelles |
Angle d'ouverture (max.) | 180 ° |
Homologation pour portes coupe-feu | Oui |
Force de fermeture réglable | Oui, à plage continue |
Vitesse de fermeture réglable | Oui |
À-coup final réglable | Oui, par valve |
Freinage à l‘ouverture intégré | Oui, réglage hydraulique possible |
Assistance à l'ouverture intégrée | Oui |
Position de réglage de la force de fermeture | Avant |
Affichage visuel de la force de fermeture | Oui |
Fonction maintien porte ouverte | en option |
Téléchargements
LABELLING OBLIGATION: © GEZE GmbH
LABELLING OBLIGATION: © Jürgen Biniasch / GEZE GmbH
LABELLING OBLIGATION: © Jürgen Pollak / GEZE GmbH
Variantes et accessoires
* Remarque concernant les produits présentés
Les produits mentionnés ci-dessus peuvent varier en termes de forme, de type, de caractéristiques et de fonction (design, dimensions, disponibilité, homologations, normes, etc.) selon les pays. Pour toute question, veuillez contacter votre interlocuteur GEZE ou nous écrire à E-Mail .