Slimdrive SL-RC2 * Système de porte coulissante linéaire automatique anti-effraction selon la classe de résistance RC2.
- Anti-effraction certifiée selon la classe de résistance RC2 (Resistance Class)
- La fonction RC2 n'est disponible que dans le mode de fonctionnement « Nuit » dans lequel la porte est verrouillée avec un verrouillage par tringle
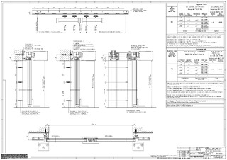
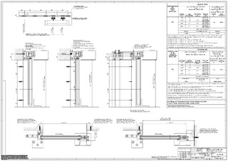
- Équipé d'un verrouillage par tringle et des composants de profilé renforcée
- Entraînement à courant continu très silencieuse et inusable avec seulement 7 cm de hauteur
- Connectivité et intégration dans l’automatisation des bâtiments via une norme ouverte (BACnet)
- Détection autonome des défauts et compte-rendu
- Entrées et sorties librement paramétrables pour différentes fonctions
- Accumulateur intégré pour l’ouverture de secours pour les défauts de sécurité comme en cas de panne de courant par exemple
Domaines d’application
- Systèmes de portes coulissantes à un et deux vantaux
- Portes intérieures et extérieures avec les exigences de sécurité les plus élevées
- Largeurs d’ouverture possibles de 800 à 3000 mm
- Poids des vantaux de porte jusqu’à 120 kg par vantail
- Les systèmes de profilé adaptés sont des systèmes de profilé à encadrement fin avec verre ISO et Mono selon la classe de résistance RC2
Situations de montage dans des projets de référence et des vidéos
Spécifications du produit
| Slimdrive SL-RC2 | |
| Pour portes à 1 vantail | Oui |
| Pour portes à 2 vantaux | Oui |
| Verre d’isolation à encadrement fin | Oui |
| Verre MONO avec cadre fin | Oui |
| Hauteur | 70 mm |
| Profondeur | 190 mm |
| Poids (max.) - 1 vantail | 120 kg |
| Poids (max.) de vantail - 2 vantaux | 120 kg |
| Largeur d'ouverture, 1 vantail | 800 mm - 3000 mm |
| Largeur d'ouverture, 2 vantaux | 900 mm - 3000 mm |
| Température de service | -15 - 50 °C |
| Indice de protection | IP20 |
| Déconnexion du réseau | Interrupteur principal à l'intérieur de l'entraînement |
| Conformité aux normes | DIN 18650, DIN EN ISO 13849 : Niveau de performance D, EN 16005 |
Téléchargements
LABELLING OBLIGATION: © GEZE GmbH
LABELLING OBLIGATION: © Zweitze Korten
Variantes et accessoires
* Remarque concernant les produits présentés
Les produits mentionnés ci-dessus peuvent varier en termes de forme, de type, de caractéristiques et de fonction (design, dimensions, disponibilité, homologations, normes, etc.) selon les pays. Pour toute question, veuillez contacter votre interlocuteur GEZE ou nous écrire à E-Mail .